planta baja con terraza

once septiembre

/ LLinars del Valles
220000€
Precio por m2
Calculo hipoteca
€ / mes
Escala energética
B
Año de construcción
2004
Superficie
73 m2
Construidos
73 m2
Plantas
1
Habitaciones
2
Baños
2
Parking
220.000

planta baja con terraza

 

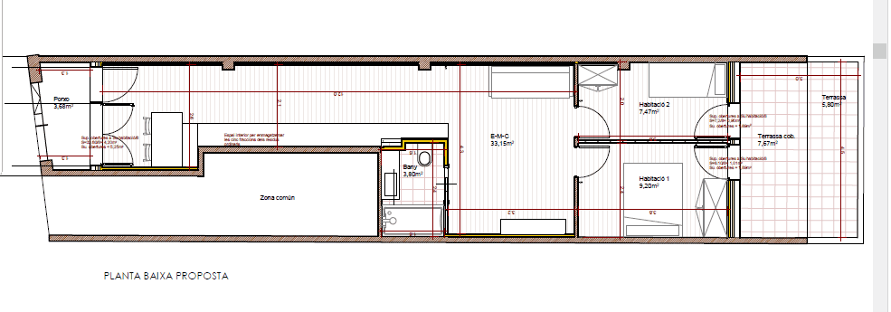
Imagina despertar cada mañana con la luz natural entrando por la ventana y salir directamente a tu propia terraza para disfrutar de un café al aire libre. Esta acogedora planta baja de obra nueva está pensada para quienes buscan tranquilidad, comodidad y calidad de vida. La vivienda dispone de entrada privada, lo que aporta una agradable sensación de independencia. Al entrar encontramos un luminoso comedor con una cocina abierta de diseño moderno, un espacio abierto y funcional donde compartir momentos en familia o con amigos, con una gran ventana que llena la estancia de luz natural. El salón, cálido y acogedor, conecta con la zona de descanso. La vivienda cuenta con dos habitaciones con salida directa a la terraza, permitiendo que la luz y el exterior formen parte del día a día. El auténtico corazón de la vivienda es su preciosa terraza privada, con porche cubierto y zona abierta, perfecta para disfrutar durante todo el año: comidas al aire libre, tardes de relax o reuniones inolvidables. Dispone además de baño completo con plato de ducha, aerotermo y climatización, cumpliendo con todas las exigencias actuales para alcanzar una buena calificación energética a, lo que se traduce en mayor eficiencia, ahorro energético y confort. Ubicada en pleno centro de Llinars del Vallès, podrás disfrutar de la comodidad de tener todo a pocos minutos caminando: la iglesia, supermercados, ambulatorio, comercios locales y la estación de tren. Una vivienda ideal para personas que buscan comodidad en una sola planta, para personas mayores que quieren vivir con todo cerca, o para familias que desean disfrutar de la vida de pueblo con todos los servicios al alcance. Un hogar pensado para vivirlo y disfrutarlo cada día.
 

Detalles

Precio : 220.000
Superficie construida : 73
Ciudad : LLinars del Valles
Código Postal : 08450
Dirección : once septiembre
Provincia : Barcelona
Año de construcción : 2004
ID de propiedad : 3056

Estructura interna

Habitaciones : 2
Baños : 1
Plantas : 1

Vídeo

Eficacia energética

Calificación energética : B
Rendimiento energético global : 50
Rendimiento energético de la propiedad : 50
CO2 : B
A+ A
50 | Clase energética B
B
C D E F G H

Características

Patio trasero
Terrazas

Ubicación

Lucy Dominguez

Doy mi consentimiento para que este sitio recopile mi nombre, correo electrónico y teléfono.

Compare Listings

Título Precio Estado Tipo Superficie Uso Habitaciones Baños
Share This